Buitenverblijf met berging 400x900x256 cm

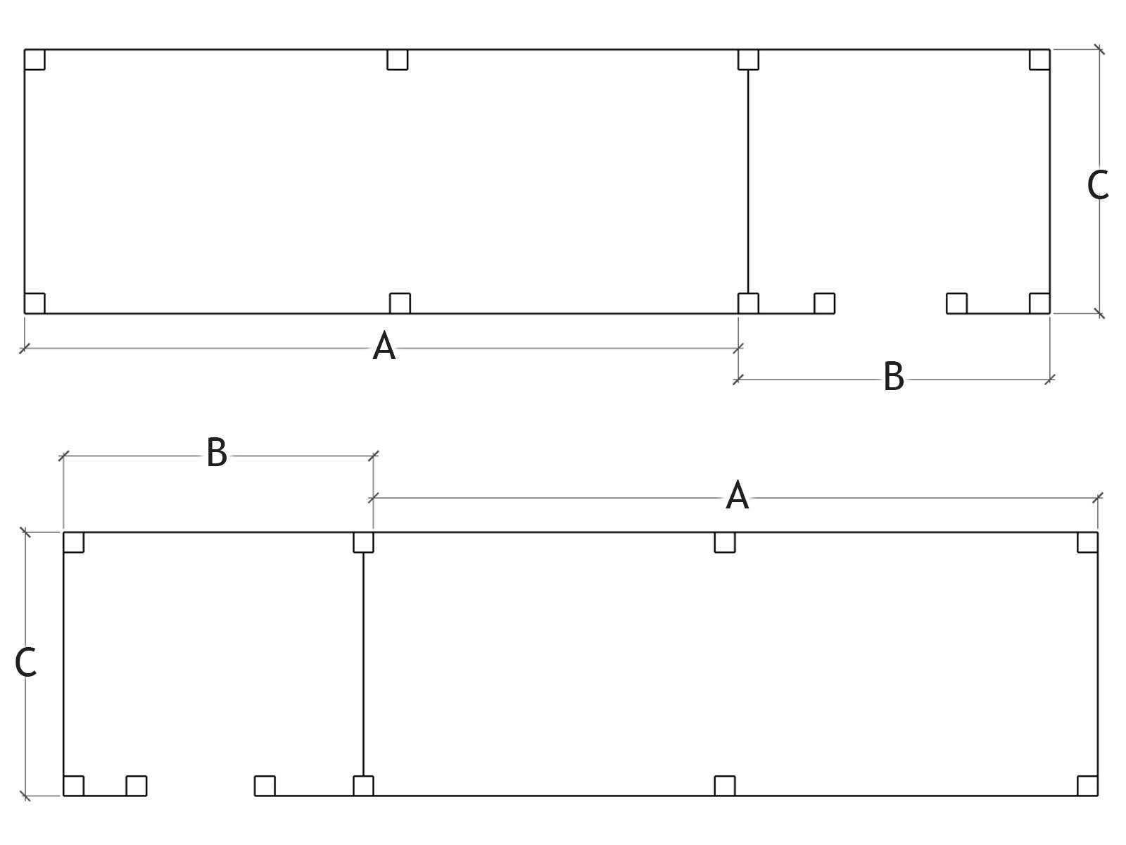
Palen 150x150 mm, Ligger 120x120 mm, dakbalken 50x150 mm, dakplanken 18 mm dik, regelwerk 45x70 mm, Wanden Zweeds Rabat zwart geïmpregneerd. 1 st, enkele deur met palen 120x120 mm doorgang 100 cm (links en rechts om te gebruiken) Buitenverblijf wordt geleverd in bouwpakket, op maat gezaagd met bevestigingsmateriaal en handleiding. Dakplanken en wanden dienen tijdens montage op juiste maat gezaagd te worden, bij montage kan berging links of rechts geplaatst worden. De afmeting 900x400cm is buitenzijde dakrand Afmeting palen maat zie schets A : 542cm B : 300cm C : 342cm totaal aantal palen 2 st. 120x120mm 8 st. 150x150mm Houtsoort: Douglas Verduurzaming: Wanden zwart geïmpregneerd Bevestigingsmateriaal: true Constructieplan: true Eigen gewicht: 900 Totale afmeting L: 400 Totale afmeting Breedte: 900 Totale afmeting Hoogte: 256 Verpakt per: 2 stuks pakket Verpakking afm. l: 4200mm Verpakking afm. w: 1250mm Verpakking afm. h: 1200mm

Startbod
€ 815,00
Aantal biedingen
30
Huidig bod
€ 2500,00
Einddatum
Kavel nummer: 6028
Einddatum
Einde op 24/11/2025 18:00
Veilinghuis
Troostwijk
© 2026 Alleveilingen. Alle rechten voorbehouden.